
Ihr oberfränkischer Meisterbetrieb mit über 20 Jahren Erfahrung!
Planung, Ausführung und Beratung aus einer Hand!
Sollten Sie Änderungswünsche haben oder komplett neu planen wollen, sind diese Planungen alle KOSTENLOS!
Unser Service für Sie!
FINNI -
ihr kompakter
Rundum-sorglos-Bungalow
Schlüsselfertig.
Nachhaltig.
Überraschend großzügig.
Ideal für Singles oder Paare
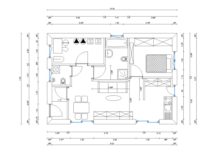
Unser Bungalow FINNI bietet auf ca. 57 m² eine erstaunlich durchdachte Raumaufteilung –
inklusive Schlafzimmer, Bad, Wohnküche und Technikraum.
Die schlüsselfertige Übergabe, hochwertige Ausstattung und unsere persönliche Baubetreuung machen FINNI zum echten Rundum-sorglos-Paket.
✔ Holzständerbauweise
✔ Alle Erdarbeiten inklusive
✔ Bodenplatte
✔ Bezugsfertiger Neubau
✔ Terrasse
✔ Festpreisgarantie
Warum mit uns bauen?
Ausgezeichnet mit dem Bayerischen Meisterpreis
Unser Firmeninhaber und Handwerksmeister wurde mit dem bayerischen Meisterpreis prämiert.
Über 20 Jahre Erfahrung im Bauwesen
Wir kombinieren Fachkompetenz mit gewachsener Praxis.
Festpreisgarantie ohne versteckte Kosten
Absolute Planungssicherheit – schriftlich garantiert.
Individuelle und kostenfreie Planung
Jedes Haus entsteht in enger Abstimmung mit Ihnen – ohne Aufpreis.
Alles aus einer Hand – vom Entwurf bis zur Schlüsselübergabe
Effiziente Abläufe, direkte Kommunikation, keine Umwege.
Eigenes Planungsbüro statt externer Vermittler
Persönlich, unabhängig, auf Ihre Anforderungen zugeschnitten.
Klare Kommunikation statt Verkaufsversprechen
Wir sagen, was machbar ist – und halten uns daran.
Gleicher Ansprechpartner in jeder Projektphase
Vertrauen entsteht durch Kontinuität und Verlässlichkeit.
Treuhandkonto und Bürgschaftsversicherung
Ihre Zahlungen sind rechtlich abgesichert – jederzeit nachvollziehbar.
Ökologisch und nachhaltig bauen
Wir bieten auch die Bauweise mit smartbricks und Zellulosedämmung von
thermofloc an.
WÄHLEN SIE ZWISCHEN VERSCHIEDENEN GRUNDRISSEN!
Oder lassen Sie ihre eigene Idee kostenlos planen!
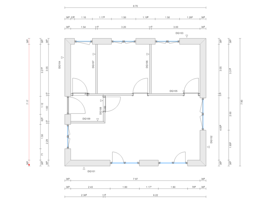
Wem es doch ein wenig zu eng wird, erweitern Sie Finni mit einer Galerie!

Baustart in Niederbayern
Hier in Niederbayern entsteht ein durchdacht geplanter und vergrößerter FINNI mit gemütlicher Galerie und großzügigen Dachüberständen. Zum Baustart legt der Chef persönlich Hand an und richtet das Schnurgerüst ein – für millimetergenaue Präzision von Anfang an.
Wir freuen uns schon auf dieses süße Traumhaus mit gemütlicher Atmosphäre!
BUNGALOW "FINNI" mit 57 m² Wohnfläche
Einziehen und wohlfühlen – zum Festpreis!
✔ Wärmepumpe eines namhaften Herstellers in Verbindung mit Fußbodenheizung
✔ KfW40-Bauweise!
✔ Decken mit doppelt so viel Vollholz im Tragwerk (alle 39 cm anstelle von 60 cm), wie es andere Fertighaushersteller anbieten
✔ Ökologisch gedämmte Außenwand mit Steinwolle anstelle von Mineralwolle – für mehr Wohnqualität und höheren Schallschutz
✔ Außenputz inklusive
✔ Hochwertige Fenster (Kunststoff oder Holz) in Schallschutzklasse 3
✔ Elektrische Rollläden in wärmegedämmten Rollladenkästen
✔ Einbruchsichere Haustüre – für Ihre Sicherheit
✔ Auswahl von Bodenbelägen, Fenstern, Türen und Fliesen nach Muster in Standardausführung
✔ Auswahl Sanitärgegenstände nach Muster in Standardausführung
✔ Vollständige Elektroinstallation in Standardausführung
✔ Zimmertüren
✔ Balkontüren
✔ Erdarbeiten inkl. Bodenplatte gemäß Statik
✔ Gestalten Sie Ihren Bungalow frei nach Belieben von rustikal bis hin zur modern!
Kontakt
Telefon: 09278-7757707
0170-3102656
E-Mail: svb-scherer@t-online.de
Anschrift: Maierhof 3, 95358 Guttenberg
Muckenreuth 27, 95466 Kirchenpingarten
Wir beraten Sie gerne – persönlich, unverbindlich und kompetent!
Gerne besprechen wir mit Ihnen Ihr Bauvorhaben FINNI – ganz unverbindlich und OHNE KOSTEN!
Dabei gehen wir gemeinsam den Grundriss durch, berücksichtigen Ihre Änderungswünsche und planen kostenlos und individuell nach Ihren Vorstellungen!
Auch eine Besichtigung Ihres Baugrundstücks ist inbegriffen:
Vor Ort erhalten Sie eine ausführliche, fachlich fundierte Beratung – immer durch unseren Firmenchef und Bauleiter Ralf Scherer persönlich. Wir schalten keine weiteren Stellen dazwischen, um für mehr Transparenz sowie einfache und direkte Kommunikation zu sorgen.
Ihre Fragen sind bei uns ausdrücklich willkommen!
Lassen Sie uns gemeinsam die beste Lösung für Ihr Bauprojekt entwickeln –
präzise, bezahlbar und nachhaltig realisierbar.
Natürlich können Sie sich nach den kostenlosen Beratungen und Vorausplanung auch gegen uns entscheiden, sollte Ihnen etwas eben nicht gefallen. Das ist zwar für uns schade, aber manchmal ist das eben so. Sie müssen Ihr Bauprojekt in den für Sie besten Händen wissen, schließlich geht es um Ihre Traumimmobilie ❣️

01
57 m²
clever geplant
Jeder Quadratmeter wird optimal genutzt – ohne unnötige Verkehrsflächen.
02
Festpreis inklusive
Keine Überraschungen – alles transparent, vom Angebot bis zur Abnahme.
03
Holzständerbau
Nachhaltig, energieeffizient & ökologisch – mit hervorragendem Raumklima.
04
Schlüsselfertig
Wir übernehmen alles – vom Fundament bis zur letzten Fliese.



















































